Q46溶解臭氧91视频官网国产如何安装
所有Q46系列仪器安装灵活。每个单元都包含一个支架,可以安装到墙壁或管道上。在所有情况下,选择一个易于进行校准的位置。还要考虑到在校准过程中可能有必要使用一个可以使用溶液的位置。为了充分利用高对比度显示器,将仪器安装在一个可以从不同角度和长距离观看显示器的位置。
将仪器放置在靠近传感器安装点的位置-这将使校准过程中容易访问。传感器到仪器的距离不应超过30米。然而,为了很大限度地提高信噪比,应尽可能使用很短的传感器电缆。臭氧传感器的标准电缆长度为7米。Q46显示器的整体尺寸见图1。

图1- Q46机箱尺寸
墙壁或管道安装
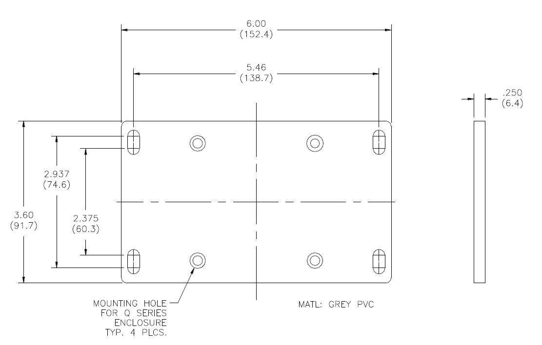
每个分析仪都提供一个带连接螺钉的 PVC 安装支架(尺寸见图2)。 多用途支架使用四个平头螺钉连接到机柜后部。 然后使用支架上的四个外部安装孔将仪器固定在墙上(图 6)。 这些孔开槽以容纳两种尺寸的 U 形螺栓,可用于管道安装装置(图 7)。 插槽将容纳为 1½“ 或 2” 管道设计的 U 形螺栓。 U 形螺栓的实际下载91视频污到下载91视频污尺寸显示在图纸中。 请注意,这些插槽适用于具有 ¼-20 螺纹的 U 型螺栓。 1½” 管道 U 形螺栓(2” I.D. 间隙)可从 ATI 以 304 型不锈钢制成,部件号为 47-0005。

图 2 - 墙壁或管道安装支架